Bureau en Location à Paris 15e Réf : 429395

Description

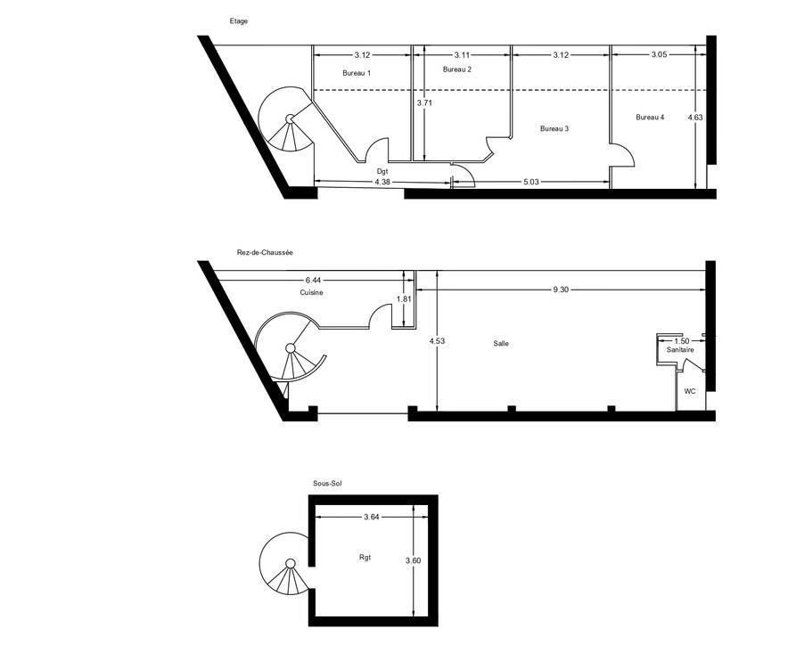
À Louer -- Bâtiment entier à usage de bureaux
Localisation : 75015 Paris, quartier Rue de la Convention / Rue Lecourbe (métro à proximité)
Loyer charges comprises : 3 890 EUR/mois

 Description

Immeuble construit en 1984, dédié exclusivement à des bureaux

Surface totale : environ 170 m² (105 m² loi Carrez + 25 m² d'espaces mansardés/cave + 45 m² hors bail)

Jardin arboré privatif de 45 m², calme et rare à Paris

12 m² supplémentaires de cave

Disponible immédiatement, loué vide, bail à définir

Usage : bureaux uniquement

Secteur & Atouts Géographiques

Le bâtiment se situe dans le 15e arrondissement, dans le quartier apprécié de la rue de la Convention / rue Lecourbe. Ce secteur est reconnu pour offrir :

Un cadre de vie calme, résidentiel et de qualité, tout en restant au coeur de Paris.

De nombreuses commodités : commerces, restaurants, accès facile aux transports en commun.

Une bonne desserte transport : métro, bus, tramway à proximité.

Un quartier mêlant artère commerçante animée et zones plus calmes, idéal pour des activités professionnelles qui cherchent un environnement serein.

Pourquoi ce bâtiment est un bon choix

Vous louez l'ensemble du bâtiment, ce qui offre une réelle autonomie et visibilité

Jardin privatif : un atout rare pour un local professionnel en ville

Très bien situé dans un quartier recherché et dynamique, favorable à une implantation commerciale ou de bureaux

Loyer charges comprises : simplicité de gestion

i Conditions

Loyer : 3 890 EUR/mois, charges comprises

Usage : exclusivement bureaux

État : vide, disponible immédiatement

 

Prix : 3 890 euros HAI dont 0.00% (0 euros) de frais d'agence à la charge de l'acquéreur, soit un prix net vendeur de 3 890 euros.

DPE : DPE Vierge - 91 kWh/m².an
GES : C - 13 kg CO2eq/m².an

Les informations sur les risques auxquels ce bien est exposé sont disponibles sur le site Géorisques : www.georisques.gouv.fr

Référence de l'annonce : 429395

Diagnostics de performance énergétique

Valeur DPE : 91 kWhep/m2.an

Valeur GES : 13 kgeqCO2/m2.an

Offre de financement

3 890 €/mois
  • Superficie :
    160m²

Informations supplémentaires

Des questions, envie de visiter ?

Vous souhaitez estimer votre bien ?

Notre équipe de professionnels vous fournira, après étude, une estimation gratuite.
Alors n'hésitez pas...