Description
À LOUER - APPARTEMENT NEUF VIDE F3 AVEC PARKING - LA PLAINE-SAINT-DENIS (93210) - 1 470 EUR / MOIS - 65,3 m² + BALCON
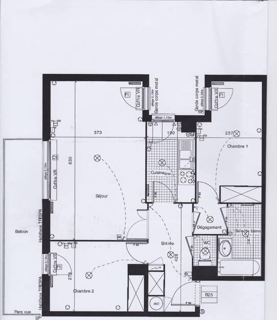
Situé  avenue des Fruitiers, au coeur d'une résidence Kaufman & Broad calme et sécurisée avec gardien, interphone et ascenseur desservant le sous-sol, ce bel appartement vide de 65,3 m²  :
une entrée, un séjour lumineux, deux chambres avec parquet, dont une donnant sur un balcon plein sud de 10 m², une salle de bains aménagée, et des toilettes séparées.
Un parking privatif en sous-sol avec prise électrique individuelle complète ce bien.
Local poussette et vélo en rez-de-chaussée.
Résidence Kaufman & Broad, environnement paisible avec vaste parc paysager à proximité.
Transports idéaux : RER D (Stade de France) à 200 m - 5 min Gare du Nord, 10 min Châtelet, 15 min Gare de Lyon, métro ligne 12, bus et tramway à proximité.
Peintures (murs et plafonds) refaites en 2021, cuisine installée en 2023, et ravalement complet voté (à venir).
Loyer : 1 390 EUR + 80 EUR de charges (chauffage individuel électrique)
Disponibilité : fin novembre 2025 (ou un peu avant selon accord)
Profil recherché : candidats disposant de revenus stables et suffisants.
Merci d'indiquer vos noms, professions, revenus, type de contrat, ancienneté, ainsi que votre caution ou garantie Visale.
Des photos complémentaires et la liste des pièces à fournir seront ensuite transmises avan
Prix : 1 470 euros HAI dont 0.07% (1 euros) de frais d'agence à la charge de l'acquéreur, soit un prix net vendeur de 1 469 euros.Copropriété en procédure : Non
DPE : B - 82 kWh/m².anGES : B - 9 kg CO2eq/m².an
Les informations sur les risques auxquels ce bien est exposé sont disponibles sur le site Géorisques : www.georisques.gouv.fr
Référence de l'annonce : 429447
Diagnostics de performance énergétique
Offre de financement
Vous souhaitez estimer votre bien ?
Notre équipe de professionnels vous fournira, après étude, une estimation gratuite.
Alors n'hésitez pas...









